SPECIALTY MGA — Aménagement de Siège Social à Casablanca

Lieu

Casablanca

Superficie

300m²

Secteur

Aménagement de Bureaux & Sièges Sociaux

Date

December 23, 2025

Share

Facebook Twitter Linkedin Instagram

Le contexte

Au cœur de Casablanca Finance City — la place financière de référence du continent africain —, SPECIALTY MGA évolue dans un univers où l’image compte autant que la performance. Acteur du secteur Finance et Assurances à ambition résolument internationale, la société confie en 2025 à Archigram® une mission sans concession : concevoir et livrer son nouveau siège social casablancais, de la première esquisse à la remise des clés, en cohérence totale avec l’identité de sa maison mère londonienne.

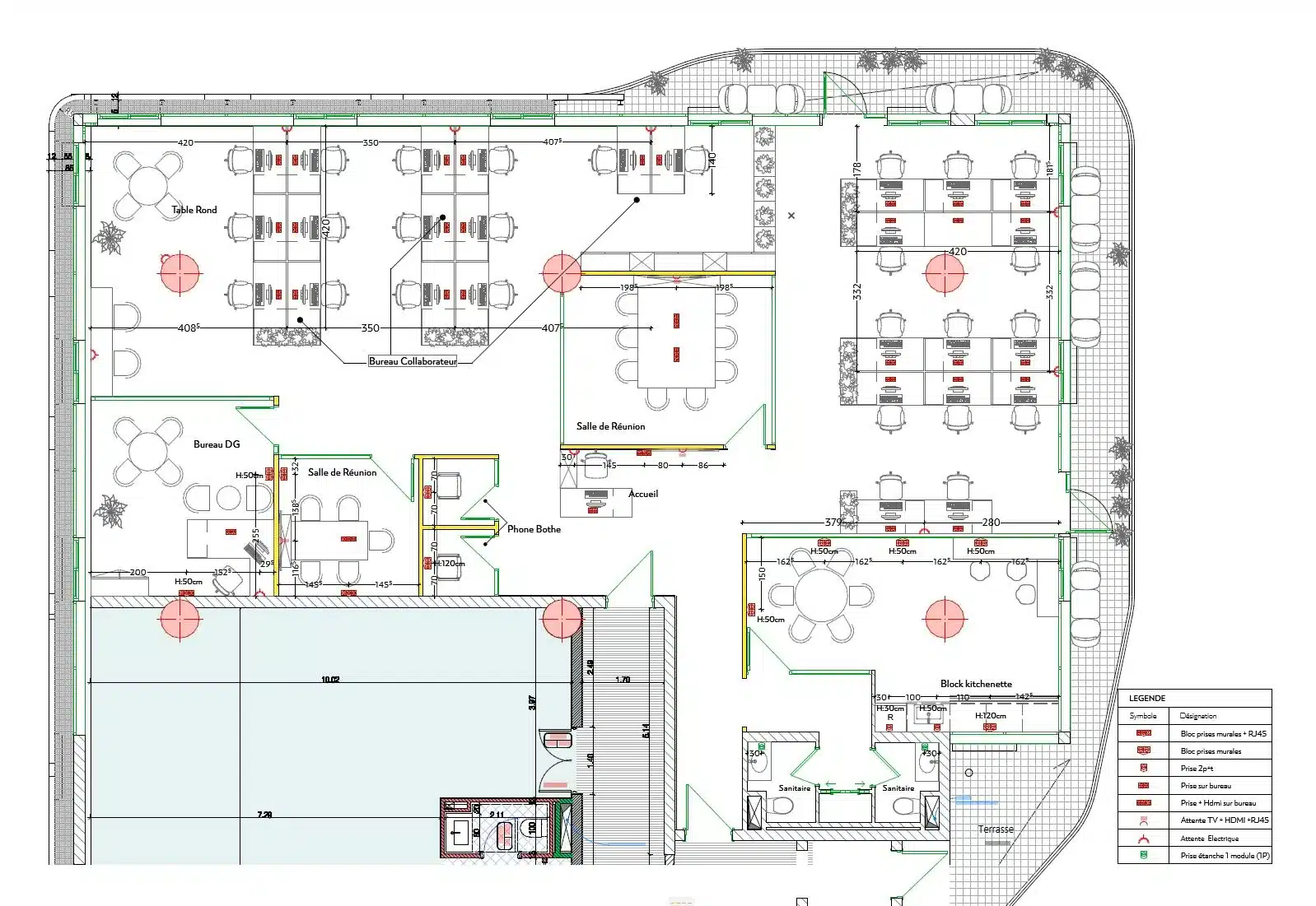
Le point de départ est un plateau nu de 300 m² — pas une cloison, pas la moindre finition. Une page blanche, mais pas sans contraintes : des poteaux porteurs à intégrer intelligemment, un mur-rideau en périphérie qui inonde le plateau de lumière naturelle, et une hauteur sous plafond contenue à 2,8 mètres. C’est dans ce cadre brut qu’Archigram® a posé les fondations d’un aménagement bureau à Casablanca calibré pour les standards internationaux de SPECIALTY MGA.

La commande était précise : offrir à 30 collaborateurs un environnement performant, évolutif et porteur de l’ADN du groupe — le tout dans une fenêtre d’exécution serrée de 4 à 5 mois.

Notre solution

La problématique & les défis

Transformer un plateau brut en siège social à Casablanca digne d’un groupe financier international, c’est résoudre en parallèle des équations techniques, fonctionnelles et esthétiques qui ne se laissent pas toujours concilier facilement.

Côté technique, la hauteur sous plafond de 2,8 mètres posait d’emblée la question de l’intégration des réseaux : climatisation, gaines, câblages — comment les loger sans écraser l’espace ? La réponse viendra du parti pris stylistique lui-même : plutôt que de dissimuler, assumer une technique apparente cohérente avec l’esthétique industrielle visée. L’acoustique constituait l’autre enjeu structurant, particulièrement dans un open space de 25 postes où la confidentialité des échanges — inhérente aux métiers de la finance — ne peut être sacrifiée à l’ouverture.

Sur le plan programmatique, le projet devait tenir deux équilibres délicats : celui entre collaboratif et confidentiel, et celui entre une identité de marque forte — ancrée dans la charte graphique londonienne — et des principes de biophilie et de wellness workplace devenus incontournables. Le tout, dans une enveloppe budgétaire maîtrisée et des délais qui ne permettaient aucune improvisation.

Notre solution

Pour répondre à ces exigences, Archigram® a construit un concept autour d’un fil directeur clair : British Industrial Chic. Un univers où la rigueur industrielle se tempère d’une chaleur contemporaine, où l’on reconnaît immédiatement l’héritage londonien sans tomber dans la citation décorative. La palette matière — briques apparentes, bois clair, moquette et détails en métal noir — installe une identité forte dès le seuil. Les tons ocre et beige, rythmés d’accents noirs, construisent une atmosphère premium sans surcharge.

Deux éléments de signature portent le lien avec Londres de façon concrète. Les phone booths inspirés des cabines téléphoniques londoniennes résolvent avec élégance la problématique acoustique tout en devenant des marqueurs visuels immédiatement reconnaissables. La bibliothèque-séparateur, quant à elle, structure la circulation et les usages sans fermer le plateau — une façon de zoner sans cloisonner. Positionnée en cœur de plan, la salle de réunion principale entièrement vitrée s’impose comme le pouls visible de l’activité, tout en préservant la discrétion des échanges.

La végétalisation — via des jardinières intégrées — introduit une respiration biophilique dans ce plateau urbain dense. Le mobilier mêle pièces sur mesure et références catalogue sélectionnées, avec des chaises ergonomiques Steelcase aux postes de travail — un choix qui traduit l’engagement de SPECIALTY MGA envers ses équipes. À l’accueil, logo et charte graphique de la maison mère londonienne sont restitués avec précision : le branding corporate s’impose dès le premier regard, avant même qu’on ait fait un pas dans le plateau.

La mise en œuvre

L’approche Design & Build d’Archigram® repose sur un principe simple mais exigeant : une seule entité porte l’ensemble du projet, de l’esquisse à la remise des clés. En phase conception, plans APD, planches matières et maquettes 3D ont permis à SPECIALTY MGA de se projeter dans chaque zone avant le premier coup de perceuse — les rendus servant de base aux ajustements fonctionnels et aux validations de matériaux, pour éviter toute dérive entre la vision et l’exécution.

La coordination de chantier — particulièrement dense sur 300 m² où s’enchaînent et se superposent de nombreux corps d’état — a été pilotée intégralement par les équipes d’Archigram®. Cette maîtrise complète du processus, sans rupture de responsabilité entre conception et réalisation, est ce qui a permis de tenir les délais comprimés sans sacrifier le niveau de finition attendu pour un siège social international installé à Casablanca Finance City.

Travaux réalisés

Ce projet de design and build au Maroc a mobilisé l’ensemble des corps de métier, pris en charge de bout en bout par Archigram® :

  • Cloisonnement BA13 sur ossature métallique
  • Faux plafonds placo
  • Sols — parquet et moquette / vinyle selon les zones
  • Peinture & enduits décoratifs
  • Menuiserie intérieure
  • Cloisons vitrées & verrières
  • Électricité courants forts
  • Éclairage LED et décoratif
  • Courants faibles — data, réseau
  • Plomberie & sanitaires (bloc hommes + bloc femmes)
  • Climatisation & ventilation
  • Mobilier sur mesure
  • Végétalisation — jardinières intégrées
  • Signalétique & branding corporate
  • Aménagement terrasse
  • Revêtement mural décoratif — briques apparentes

Moins de cinq mois après la remise du plateau brut, 300 m² ont basculé dans un autre monde. Un siège social pleinement opérationnel, immédiatement identitaire, pensé pour les 30 collaborateurs d’aujourd’hui sans ignorer les besoins de demain. L’accueil, l’open space de 25 postes, les deux salles de réunion de 6 personnes, les phone booths acoustiques, le bureau de l’office manager et les espaces techniques s’articulent dans un plan fluide, où chaque zone trouve sa place sans empiéter sur les autres.

Ce qui frappe à la livraison, c’est la double lecture du projet. Fonctionnelle d’abord : chaque décision — des cloisons vitrées à la bibliothèque-séparateur, du choix de la moquette à l’intégration technique en apparent — répond à une contrainte réelle, documentée, assumée. Émotionnelle ensuite : l’ensemble dégage une cohérence d’ambiance rare, directement connectée à l’ADN international de SPECIALTY MGA. Le siège de Casablanca dialogue avec celui de Londres — même vocabulaire, même exigence.

« Je voudrais vous féliciter pour la qualité du travail effectué, je suis très agréablement surpris. »
— Direction SPECIALTY MGA

Ce projet dit quelque chose de précis sur la façon dont Archigram® aborde les missions complexes : terrain contraint, délais serrés, identité de marque à préserver — et une exigence d’aménagement bureau à Casablanca à la hauteur d’un groupe financier international. Pour un projet similaire, nos équipes sont disponibles pour un premier échange.

WhatsApp